Viborg

Vesterbrogade

7

A

, st.

Lejlighed

1 værelses

41 m2

Husleje pr. md.

4.100

kr.

/Ubegrænset lejeperiode

Information

Boligareal:

41 m²

Antal værelser:

1

Etage:

st.

Terrasse:

Ja

Husdyr:

Ja, med tilladelse

Delevenlig:

Nej

Parkering:

Mulighed for parkering

Cykelparkering:

Ja

Depotrum:

Ja

Opvaskemaskine:

Ja

Vaskemaskine:

Ja

Tørretumbler:

Ja

Møbleret:

Nej

Energimærke:

Energimearke A2020

Ledig pr:

01/07/2026
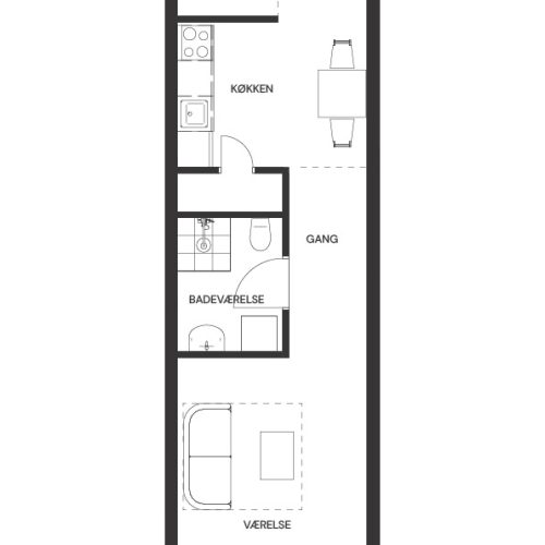
1 værelses lejlighed centralt beliggende i Viborg
Denne 41 m2 lejlighed er en hyggelig,
velindrettet oase med entré, køkken,
badeværelse og kombineret stue/værelse.
Den moderne indretning skinner igennem med
lyse elementer i både køkken og bad. Direkte
adgang fra trappeopgangen, inklusive elevator,
gør lejligheden tilgængelig.
En ekstra fordel er den lille terrasse.
Central beliggenhed i Viborg, få meter fra
gågaden og cafémiljøet. Netto overfor gør
dagligvareindkøb let overskueligt. Iejligheden
er ideel som første lejlighed eller for dem, der
søger smart, centralt boende uden at gå på
kompromis med komfort.

Økonomi i boligen

Husleje pr. md.:

4.100 kr

Depositum:

12.300 kr

Boligstøtte udregner

Personer i husstanden*
Børn*
Er du pensionist?*
Din månedlige indkomst*
Din boligstøtte
ca.
kr
Denne udregning er kun vejledende*
Din boligstøtte
ca.
kr
Denne udregning er kun vejledende*
Din boligstøtte
ca.
kr
Denne udregning er kun vejledende*
Din boligstøtte
ca.
kr
Denne udregning er kun vejledende*
Fejl
Hov, det ser ud til at du ikke kan få boligstøtte - tjek om du har udfyldt alt korrekt

I samme område

Boliger

8800
Viborg
Farvervej
2
H
, 2
212

Ledig

/Ubegrænset lejeperiode

1 værelses

36 m2

3.300,-
8800
Viborg
Gravene
28
B
, 2
2

Ledig

/Ubegrænset lejeperiode

1 værelses

61 m2

4.500,-
8800
Farvervej
2
H
, 1
104

Ledig

/Ubegrænset lejeperiode

1 værelses

36 m2

3.300,-

Se alle boliger

Få et overblik over vores lejemål her

Bestil en fremvisning

Bestil en fremvisning

Udfyld formularen og bliv kontaktet af vores boligudlejningsteam snarest muligt.