Viborg

Gravene

24

B

, 1

Lejlighed

2 værelses

78 m2

Husleje pr. md.

5.950

kr.

/Ubegrænset lejeperiode

Information

Boligareal:

78 m²

Antal værelser:

2

Etage:

1

Terrasse:

Ja

Husdyr:

Ja, med tilladelse

Delevenlig:

Nej

Cykelparkering:

Ja

Depotrum:

Ja

Opvaskemaskine:

Ja

Vaskemaskine:

Ja

Dørtelefon:

Ja

Møbleret:

Nej

Energimærke:

Energimearke A2020

Ledig pr:

01/12/2025
Lys og moderniseret 2-værelses lejlighed i hjertet af Viborg
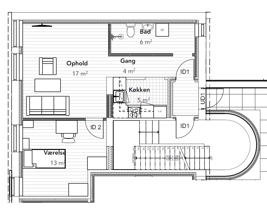
Velkommen til denne indbydende og istandsatte lejlighed, centralt beliggende i Viborgs charmerende midtby. Lejligheden byder på en god planløsning med entré, et stilrent badeværelse med stor bruseniche, klinkegulv med gulvvarme samt egen vaskemaskine.

Det åbne køkken-alrum skaber en naturlig forbindelse mellem køkken og stue, hvilket giver en lys og luftig atmosfære. Køkkenet er nyt og fra Tvis, udstyret med alle moderne hårde hvidevarer såsom køle-/fryseskab, ovn, kogeplader, emhætte og opvaskemaskine.

Stuen er rummelig og indbydende, og soveværelset har en god størrelse med plads til både seng og opbevaring. Der er gennemgående trægulve i entré, stue, køkken og soveværelse, som tilfører varme og karakter til boligen.

Til ejendommen hører fælles tagterrasse, cykelparkering og et praktisk depotrum. Der kan ansøges om tilladelse til at holde en indekat.

En ideel bolig for dig, der ønsker komfort og byliv i skøn forening.

Plantegning er vejledende.

Økonomi i boligen

Husleje pr. md.:

5.950 kr

A'conto forbrug pr. md.:

1.350 kr

Depositum:

17.850 kr

Boligstøtte udregner

Personer i husstanden*
Børn*
Er du pensionist?*
Din månedlige indkomst*
Din boligstøtte
ca.
kr
Denne udregning er kun vejledende*
Din boligstøtte
ca.
kr
Denne udregning er kun vejledende*
Din boligstøtte
ca.
kr
Denne udregning er kun vejledende*
Din boligstøtte
ca.
kr
Denne udregning er kun vejledende*
Fejl
Hov, det ser ud til at du ikke kan få boligstøtte - tjek om du har udfyldt alt korrekt

I samme område

Boliger

8800
Viborg
Vilhelm Ehlerts Alle
28
, st.
1

Ledig

/Ubegrænset lejeperiode

2 værelses

67 m2

6.400,-
8800
Viborg
St. Sct. Hans Gade
9
L
, 2
tv

Ledig

/Ubegrænset lejeperiode

2 værelses

75 m2

5.000,-
8800
Viborg
Dalbergsgade
2
B
St. 4

Ledig

/Ubegrænset lejeperiode

2 værelses

63 m2

5.150,-
8800
Viborg
Vesterbrogade
7
H
, 2.
3

Ledig

/Ubegrænset lejeperiode

2 værelses

74 m2

7.750,-
8800
Viborg
Vesterbrogade
7
G
, St.
4

Ledig

/Ubegrænset lejeperiode

2 værelses

71 m2

7.500,-
8800
Viborg
Sct. Nicolaj Gade
10
A
st

Ledig

/Ubegrænset lejeperiode

2 værelses

69 m2

6.950,-
8800
Viborg
Vesterbrogade
7
H
, St.
4

Ledig

/Ubegrænset lejeperiode

2 værelses

74 m2

7.500,-
8800
Viborg
Sct. Mogens Gade
69
, 4
tv

Ledig

/Ubegrænset lejeperiode

2 værelses

89 m2

5.950,-
8800
Viborg
Vesterbrogade
8
A
, 2
2

Ledig

/Ubegrænset lejeperiode

2 værelses

76 m2

6.600,-
8800
Viborg
Møgelparken
34
, 1
3

Ledig

/Ubegrænset lejeperiode

2 værelses

81 m2

7.050,-

Se alle boliger

Få et overblik over vores lejemål her

Bestil en fremvisning

Bestil en fremvisning

Udfyld formularen og bliv kontaktet af vores boligudlejningsteam snarest muligt.